Expressions of Interest (EOI)
Click through to learn more here about the EOI process and register your Expression of interest.
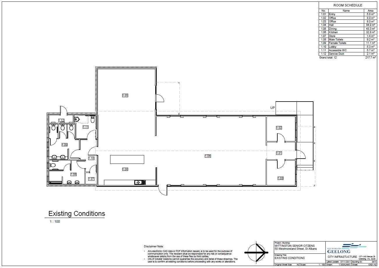
The City of Greater Geelong (the City) is seeking Expressions of Interest (EOI) for the opportunity to lease the former Whittington Senior Citizens building and land at 50 Westmoreland Street, Whittington.
The former Whittington Senior Citizens Hall, built circa 1910, sits on a rectangular-shaped allotment spanning approximately 1,602m², which includes an existing pocket park. The site offers frontage to Westmoreland Street and rear access to St James Street, Whittington.
Although the building is dated, it remains functional and includes:
The City invites proposals from community organisations for the use of this site.
Respondents will need to undertake any required renewal or redevelopment works to ensure the site is suitable for their proposed purpose.
Please note that this EOI does not include financial or operational support from the City. Respondents will be fully responsible for the fit out, redevelopment, set up, ongoing operations, and maintenance of their project. The City is seeking proposals from financially secure applicants with the capacity to deliver successful outcomes.
Through this EOI process, we invite interested parties to present their vision for the site. Proposals should detail how the property will meet their operational needs while demonstrating their ability to effectively activate the site.
Image 1 of 2
The subject property has the following services available:
The objectives of this EOI are:
Establish a sustainable future use and management of the site for the purpose of providing a service to the community that achieves the following outcomes:
The personal information and feedback (collectively the Data) requested on this page is being collected by City of Greater Geelong (City) for the purpose of Expressions of Interest for lease of former Whittington Senior Citizen Hall and any other directly related purpose (Project).
A de-identified engagement summary report may be published on our website.
If your personal information is not collected, the Project may not be able to be adequately conducted, and the City may not be able to contact you for further questions or to find solutions.
In order to collect and conduct in depth and detailed analysis of the Data for the purposes of the Project, the City will disclose the Data (including your personal information if provided) to its third-party service providers, including Social Pinpoint Pty Ltd, Converlens Pty Ltd and Amazon Web Services.
Other than as stated above, your personal information will not be disclosed to any external party without your consent, except as required or authorised by law
Our privacy policy is available on our website. If you wish to alter any of the personal information you have supplied to the City, please contact us by sending an email to privacy@geelongcity.vic.gov.au.
Click through to learn more here about the EOI process and register your Expression of interest.
Take the opportunity to share your feedback about the City's intention to enter into a lease for this property.
Have questions or want to learn more about a project, contact us below:
| Phone | 03 5272 5272 |
|---|---|
| Website | www.geelongaustralia.com.au/contact/ |
The National Relay Service is available as a phone solution for people who are deaf or have a hearing or speech impairment.
We Acknowledge the Wadawurrung People as the Traditional Owners of the Land, Waterways and Skies. We pay our respects to their Elders, past, present and emerging. We Acknowledge all Aboriginal and Torres Strait Islander people who are part of our Greater Geelong community today.
This site is owned and operated by City of Greater Geelong using software licensed from Social Point by Open Point. For details on how the City of Greater Geelong (City) collects and protects your personal information refer to the City’s Privacy Policy. For details of how Social Point by Open Point may access personal information, Please refer to Social Point by Open Point’s Privacy Policy.
In order to gain a deeper understanding of the data
provided to the City and improve our services to you, we may disclose the
information you provide to us to AWS Comprehend and Converlens Pty Ltd which
carry out analysis of the data. Your personal information may be disclosed to
AWS Comprehend and Converlens Pty Ltd based in Australia only in relation to the
primary purpose of collection. View this link for AWS Comprehend’s
Data Privacy statement and Converlens Pty Ltd Data Privacy statement .
Terms of Use
The following Terms of Use (“Terms”) govern the use of Have Your Say (“site”). The software platform is owned by Social Point by Open Point and operated by us, City of Greater Geelong (“City”).
By accessing or using the site, you are choosing to agree to the Terms, the Privacy Policy and Moderation Policy. If you disagree with any of these Terms, you must stop using the site immediately.
If you are under 18 years old, you must not use the site unless your parent or guardian understands and has accepted these Terms (including the Privacy Policy and Moderation Policy) and allows you to use the site.
Third party websites
The site may contain links to third party websites not managed by the City. Those sites are not within the City’s control and may not adhere to the same privacy, security, or accessibility standards as the City. The City accepts no responsibility for the content or availability of those sites, or for any associated partners or advertisers. Any link to an external website is provided for information and convenience purposes only.
Use of your account
While using the site, you must comply with all applicable laws.
When you create an account for the site, you must always provide us with accurate information. Failure to do so may result in immediate termination of your account .
You must protect your password for the site, and you are responsible for any activity performed using that password. You must immediately report any unauthorised use of your password or account to us. In some cases, we or our agents may require access to your user accounts to respond to technical issues.
To create and maintain a productive and safe online environment where users can participate in consultation topics, or communicate with each other, without feeling intimidated, any content you post is subject to our Moderation Policy. You should be aware that your posts may remain online indefinitely.
You understand and agree that:
Can your account be suspended or terminated?
We may terminate or suspend your access to the site and/or your account immediately, without prior notice, including without limitation if you breach the Terms. We may immediately deactivate or delete your account and all the related files and information in your account. After your account has been terminated, the content you have posted may remain indefinitely on the site.
If you want to terminate your own account, please send an email to engagement@geelongcity.vic.gov.au.
What content do we own?
This website contains proprietary information and/or material that is subject to copyright, trademark, or patent (“Intellectual Property”), including text, software, source code, pages, documents and online graphics, photographs, sounds, audio, video and other interactive features. All Intellectual Property in the content of the site is owned by or licensed to the City.
Except for Intellectual Property which is in the public domain or for which you have been given written permission, you must not copy, alter, transmit, sell, or distribute any of the Intellectual Property on this site.
License for content you contribute
You grant the City of Greater Geelong and the public a licence to use any content that you submit or post on the site under the Creative Commons Attribution-ShareAlike 4.0 Australian License.
Indemnity
You agree to indemnify and hold the City, its officers, employees and agents harmless against any loss, liability, claims or expenses (including legal costs), suffered by or made against the City, its officers, employees or agents by any third party due to or arising out of or in connection with your use of the site.
Disclaimer
The City does not endorse the comments or opinions of users of the site, and is not responsible for any statement by any third party.
You agree that you use the site entirely at your own risk. The City makes no representation regarding the accuracy or authenticity of the content of the site, or regarding the site’s availability. Nothing contained within the site constitutes professional advice. The City accepts no liability in relation to the use of, or reliance upon, any content. All persons using or relying upon any content do so at their own risk, and accept sole responsibility for assessing the relevance and accuracy of that content.
If you download any material through the site, you do so at your own risk, and the City is not liable for any damage to your computer system or loss of data.
You agree that the City, its officers, agents, licensors and other partners are not liable for any loss, liability, claim, or demand, including legal fees, arising from or in connection with your use of the site.
What happens if these Terms change?
The City reserves the right, at its sole discretion, to modify or replace these Terms at any time without notice. The most recent version of the Terms can be seen on this page. By continuing to access or use our site after those revisions become effective, you agree and will comply to the revised terms. If you do not agree to the revised terms, please discontinue using our site.
Governing Law
These Terms shall be governed in accordance with the laws of Victoria, Australia, without regard to its conflict of law provisions.
Contact Us
If you have any questions about these Terms, please contact us at engagement@geelongcity.vic.gov.au.
Enter your email address below. We will send you instructions to reset your password.
Back to Log in
Creating an account helps us better understand your needs and the needs of the community.
Already have an account? Log in now
Thank you, your account has been created.
Completing the questions below allows us to tailor your notifications to your areas of interest. The questions are optional. Your privacy is important to the City, this information is only used for internal purposes.
You’re using an outdated browser.
Some features of this website may not work correctly. To get a better experience we strongly recommend you download a new browser for free:
Would you like to follow this project to receive email updates?