This engagement is closed.

Update 30 July, 2021

Council approved market testing to seek proposals to lease the café space at 2/240 Pioneer Road, Grovedale 3216 (Leisurelink Kiosk) and to enter into a lease with the successful party following the completion of the market testing process.

Update – 11 June 2021

This engagement is now closed for evaluation and review.Thank you to everyone who provide feedback, it is valued and appreciated.


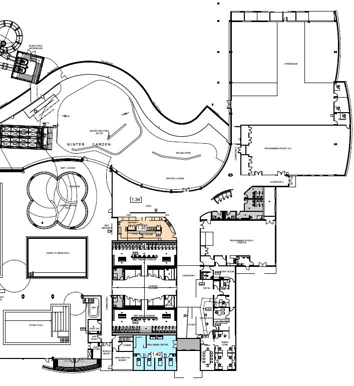
The City of Greater Geelong proposes to lease approximately 80m2 of the premises at Leisurelink Aquatic and Recreation Centre for the purpose of a kiosk/café. The premises is located within 2/240 Pioneer Road, Grovedale, contained in Certificates of Title Volume 11978 Folio 496, Volume 9499 Folio 304, Volume 9034 Folio 242, Volume 11978 Folio 513.


Leisurelink

Proposed lettable area highlighted in orange.


Submissions Process

In accordance with section 223 & section 190 of the Local Government Act 1989 and Council's Community Engagement Policy, submissions are invited on the proposed lease (approximately 80m2) of 2/240 Pioneer Road, Grovedale, any person may make a submission to the Council. All submissions will be considered.

If any person wishes to be heard in support of their submission, they must include in their request to be heard in the written submission. This will entitle them to appear either personally or by a person acting on their behalf, before a Submissions Review Panel. The date, time and location will be advised.

Submissions on this matter must be received by 11 June 2021.

Submissions can be made online below or addressed to the Manager - Property, Procurement and Assets, Greater Geelong City Council, PO Box 104, Geelong, Vic, 3220

To ensure your submission is valid please include your name, postal address, a contact phone number, email address (if you have one) and details of your submission.


Submission details

Privacy Clause

The personal information requested on this form is being collected by City of Greater Geelong for the purpose of the collating of submissions regarding this notice to lease approximately 80m2 of the premises at Leisurelink Aquatic and Recreation Centre for the purpose of a kiosk/café, or any other directly related purpose.

If the personal information is not collected, we may not be able to contact you for further questions or solutions. Your personal information will only be disclosed as required to do so by law. Our privacy policy is available on our website. If you wish to alter any of the personal information you have supplied to City of Greater Geelong, please contact us by sending an email to privacy@geelongcity.vic.gov.au.